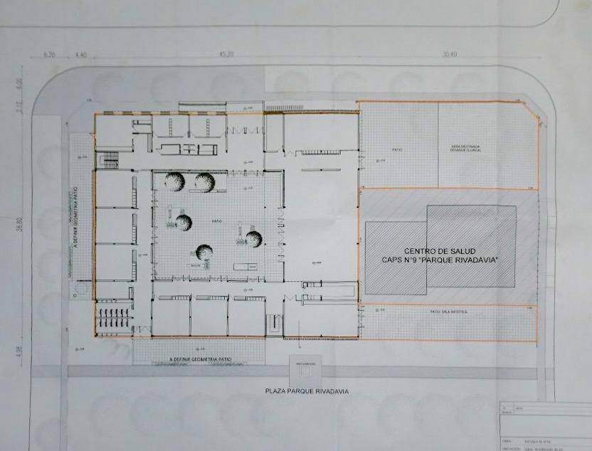
Comenzó la obra de construcción de la Escuela Secundaria N° 15 en el barrio Parque Rivadavia, una iniciativa destinada a fortalecer la educación pública en General Rodríguez.
El inicio de los trabajos marca un paso importante para la comunidad educativa del barrio, con el objetivo de ampliar y mejorar la infraestructura escolar, garantizando espacios adecuados para el desarrollo de las actividades educativas. La nueva institución permitirá acompañar el crecimiento de la matrícula y mejorar las condiciones de enseñanza y aprendizaje.


Desde el Municipio se destacó la importancia de esta obra como parte de las políticas orientadas a consolidar el acceso a una educación pública de calidad, reafirmando el compromiso con la formación de las y los estudiantes del distrito.
Municipalidad de General Rodríguez.


